"الإسكان" تعتمد تخطيط مدينة كفر الزيات ومشروع سكني بأكتوبر
نشرت جريدة الوقائع المصرية في عددها رقم 239، الصادر في 24 أكتوبر 2020، قراري وزارة الإسكان والمرافق والمجتمعات العمرانية، بشأن اعتماد تعديل المخطط الاستراتيجي العام لمدينة كفر الزيات بمحافظة الغربية، واعتماد تخطيط إقامة نشاط سكني بمقابل عيني بالحزام الأخضر في أكتوبر.
وحمل القرار الأول رقم 542 لسنة 2020، بشأن اعتماد تعديل المخطط الاستراتيجي العام لمدينة كفر الزيات بمحافظة الغربية.
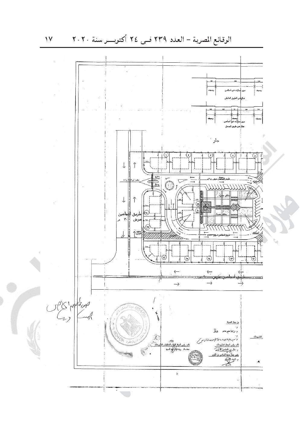
وحمل القرار الثاني رقم 707 لسنة 2020، باعتماد تخطيط وتقسيم قطعة الأرض رقم (1أ) بمساحة (5) أفدنة الواقعة بالحوض رقم (34) بالحزام الأخضر بمدينة 6 أكتوبر والمخصصة لـ طارق أحمد عبد الرازق خليل لإقامة نشاط سكني بمقابل عيني.












وحمل القرار الأول رقم 542 لسنة 2020، بشأن اعتماد تعديل المخطط الاستراتيجي العام لمدينة كفر الزيات بمحافظة الغربية.
وحمل القرار الثاني رقم 707 لسنة 2020، باعتماد تخطيط وتقسيم قطعة الأرض رقم (1أ) بمساحة (5) أفدنة الواقعة بالحوض رقم (34) بالحزام الأخضر بمدينة 6 أكتوبر والمخصصة لـ طارق أحمد عبد الرازق خليل لإقامة نشاط سكني بمقابل عيني.












