مجلس الوزراء يخصص أرضا من أملاك الدولة لنادي أسوان الرياضي
نشرت الجريدة الرسمية في عددها رقم 20، الصادر في 20 مايو 2021، قرار رئيس مجلس الوزراء الدكتور مصطفى مدبولي رقم 892 لسنة 2021، بشأن تخصيص قطعة أرض من أملاك الدولة الخاصة لصالح نادي أسوان الرياضى.
وينص القرار على تخصيص قطعة أرض من أملاك الدولة الخاصة، المقام عليها منشآت ومباني نادي أسوان الرياضي، بمدينة أسوان محافظة أسوان، بالإيجار الاسمي لمدة 30 سنة، لصالح نادي أسوان الرياضى.


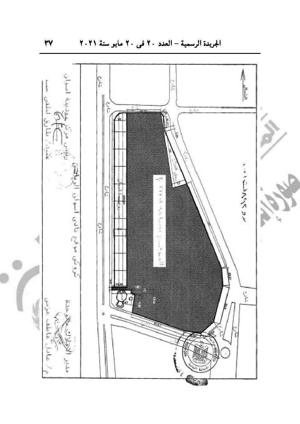
وجاء في المادة الأولى للقرار بأن تخصص مساحة 32718 مترًا مربعًا، المقام عليها بعض منشآت ومباني نادي أسوان الرياضي، محافظة أسوان، بالإيجار الاسمي لمدة 30 سنة، لصالح نادي أسوان، وفقًا للحدود والأبعاد المبينة بالرسم الكروكي.
وينص القرار على تخصيص قطعة أرض من أملاك الدولة الخاصة، المقام عليها منشآت ومباني نادي أسوان الرياضي، بمدينة أسوان محافظة أسوان، بالإيجار الاسمي لمدة 30 سنة، لصالح نادي أسوان الرياضى.


وجاء في المادة الأولى للقرار بأن تخصص مساحة 32718 مترًا مربعًا، المقام عليها بعض منشآت ومباني نادي أسوان الرياضي، محافظة أسوان، بالإيجار الاسمي لمدة 30 سنة، لصالح نادي أسوان، وفقًا للحدود والأبعاد المبينة بالرسم الكروكي.
