رئيس الوزراء يصدر قرارا بالاستيلاء على أرض بالقليوبية لصالح الخط السادس للمترو (مستند)
نشرت الجريدة الرسمية في عددها رقم 14، الصادر في 4 أبريل 2024، قرارا جديدا لرئيس الوزراء اليوم الدكتور مصطفى مدبولي رقم 754 لسنة 2024، بشأن الاستيلاء بطريق التنفيذ المباشر على الأرض اللازمة مشروع إنشاء ورشة العمرة الخفيفة للخط السادس للمترو بشارع الخصوص القديم بالقليوبية.
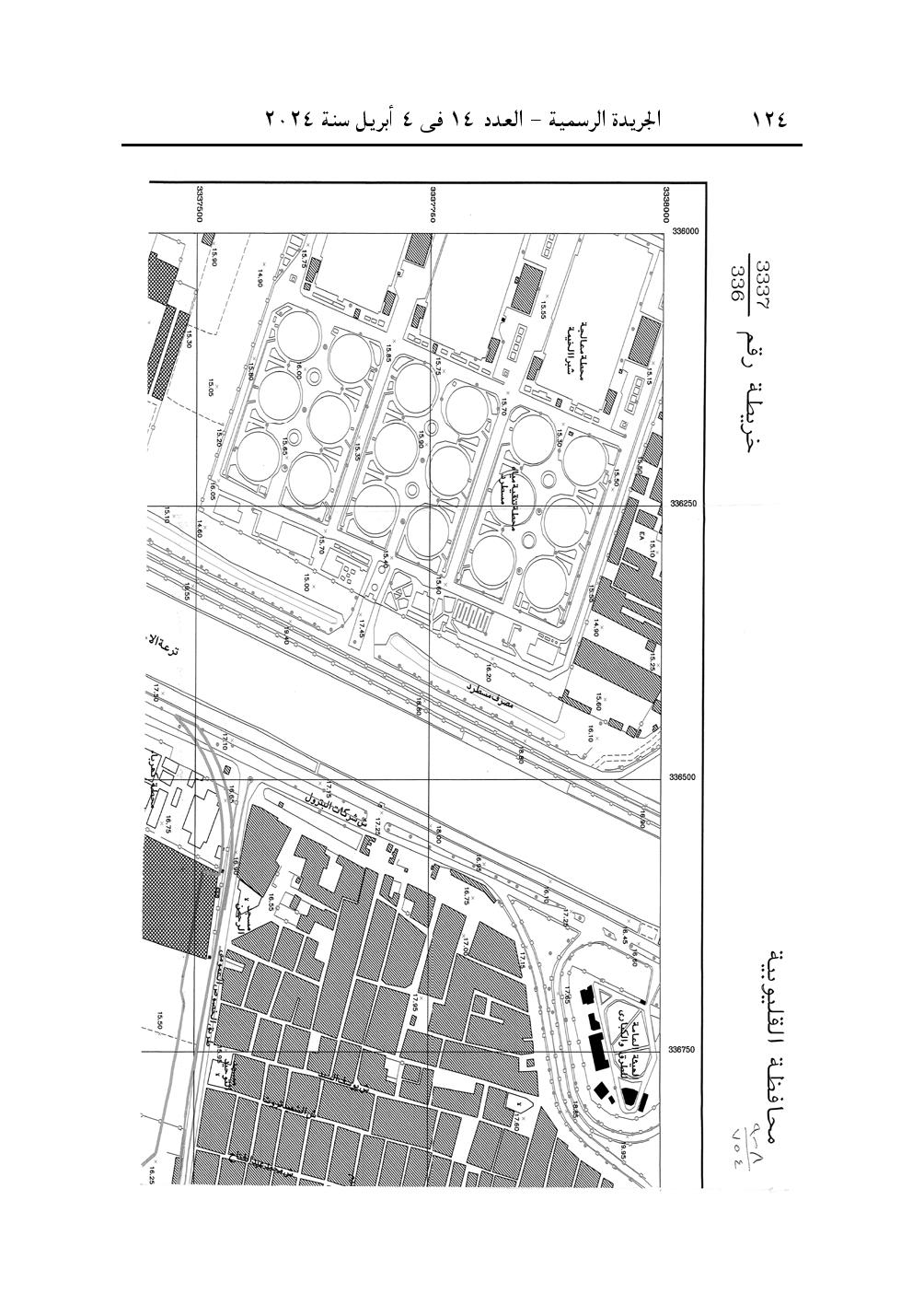
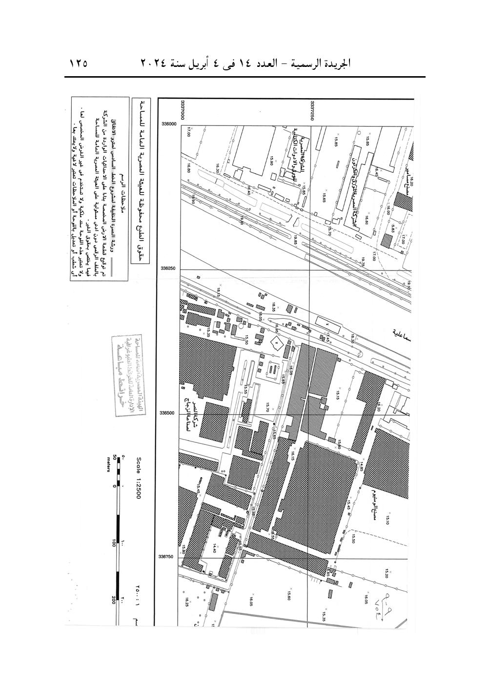
وجاء في نص المادة الأولى لقرار رئيس مجلس الوزراء “يعتبر من أعمال المنفعة العامة مشروع إنشاء ورشة العمرة الخفيفة للخط السادس للمترو، بمساحة 85٫735 متر مربع، بشارع الخصوص القديم فى نطاق محافظة القليوبية، وذلك لصالح الهيئة القومية للأنفاق”.
ويستولى بطريق التنفيذ المباشر على الأرض اللازمة لتنفيذ المشروع المشار إليه فى المادة السابقة، والمبين موقعها ومساحتها وحدودها واسم مالكها الظاهر بالمذكرة الإيضاحية والخريطة المساحية وكارت الوصف والكشف المرفق.















ونقدم لكم من خلال موقع (فيتو)، تغطية ورصدًا مستمرًّا على مدار الـ 24 ساعة لـ أسعار الذهب، أسعار اللحوم ، أسعار الدولار ، أسعار اليورو ، أسعار العملات ، أخبار الرياضة ، أخبار مصر، أخبار اقتصاد ، أخبار المحافظات ، أخبار السياسة، أخبار الحوادث ، ويقوم فريقنا بمتابعة حصرية لجميع الدوريات العالمية مثل الدوري الإنجليزي ، الدوري الإيطالي ، الدوري المصري، دوري أبطال أوروبا ، دوري أبطال أفريقيا ، دوري أبطال آسيا ، والأحداث الهامة و السياسة الخارجية والداخلية بالإضافة للنقل الحصري لـ أخبار الفن والعديد من الأنشطة الثقافية والأدبية.
