قرار رئيس الوزراء بالاستيلاء على أراض وعقارات في 6 محافظات لمشروع القطار السريع
نشرت الجريدة الرسمية في عددها رقم 23، الصادر في 9 يونيو 2022، قرار رئيس الوزراء الدكتور مصطفى مدبولي رقم 1320 لسنة 2022، بشأن الاستيلاء على الأراضي والعقارات في 6 محافظات لتنفيذ مشروع إنشاء القطار الكهربائي السريع.
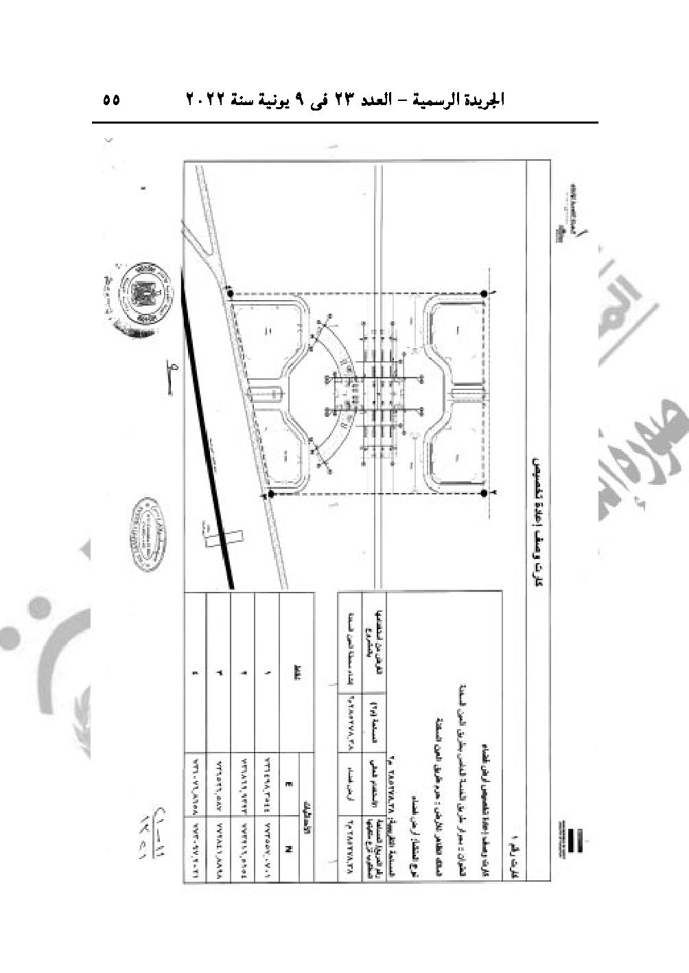
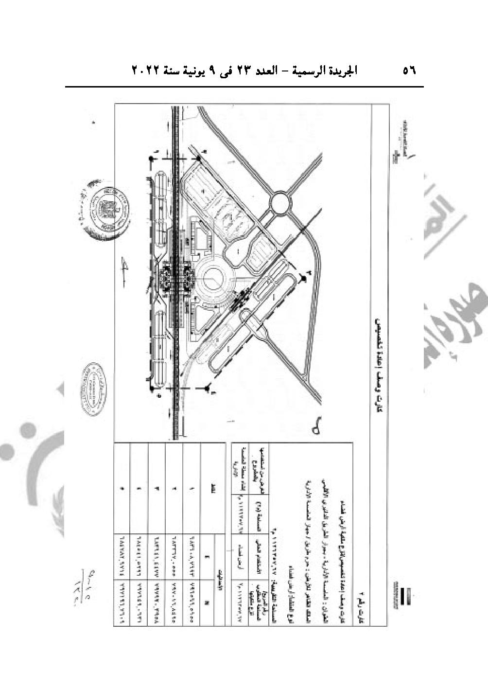
وينص القرار في مادته الأولى على أن يُضاف إلى أعمال المنفعة العامة الصادر بشأنها قرارى رئيس مجلس الوزراء رقمى 2181 و3300 لسنة 2021، بعض المسطحات الأراضي والعقارات في نطاق محافظات (السويس، القاهرة، الجيزة، المنوفية، البحيرة، الإسكندرية)، اللازمة لتنفيذ مشروع إنشاء القطار الكهربائي السريع (السخنة- العاصمة الإدارية- العلمين- مطروح) في المسافة من السخنة حتى برج العرب بطول 315 كيلو متر.














































































































وجاء في المادة الثانية للقرار "يستولى بطريق التنفيذ المباشر، لصالح الهيئة القومية للأنفاق، على مسطحات الأراضي والعقارات الإضافية، والمبين موقعها ومساحتها وحدودها وأسماء ملاكها الظاهرين بالمذكرة الإيضاحية والخرائط المساحية والكشوف وكروت الوصف.
كما ذكرت المادة الثالثة بالقرار على أن يُنهى تخصيص الأراضي والعقارات المملوكة لجهات حكومية، والموضح بيانها، وملاكها الظاهرين بالخرائط والكشوف وكروت الوصف المرفقة، ويُعدل تخصيصها لصالح الهيئة القوومية للأنفاق بدون مقابل.
