3 قرارات جديدة لرئيس الوزراء اليوم
نشرت الجريدة الرسمية في عددها رقم 20، الصادر في 19 مايو 2022، 3 قرارات لرئيس مجلس الوزراء الدكتور مصطفى مدبولي، بإضافة بعض مسطحات الأراضي والعقارات في محافظتى القاهرة والجيزة لتنفيذ مونوريل العاصمة الإدارية واعتبار مشروع ازدواج طريق الأقصر/ قنا الصحراوي منفعة عامة، والترخيص لشركة "تقنيات الاستشعار عن بُعد وعلوم الفضاء".
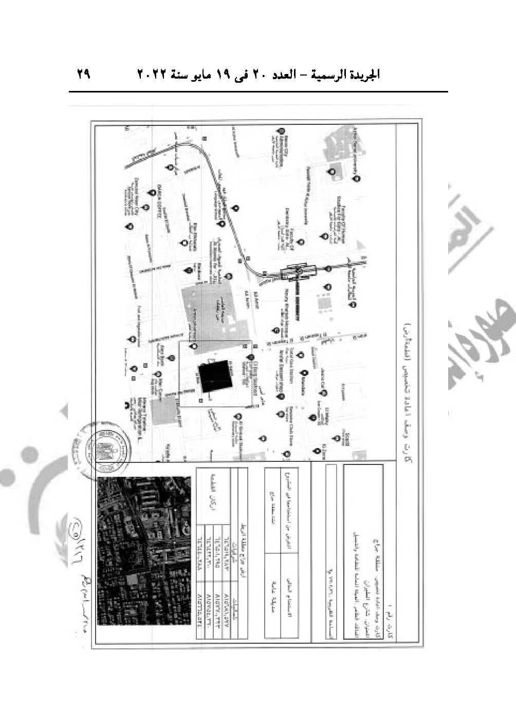
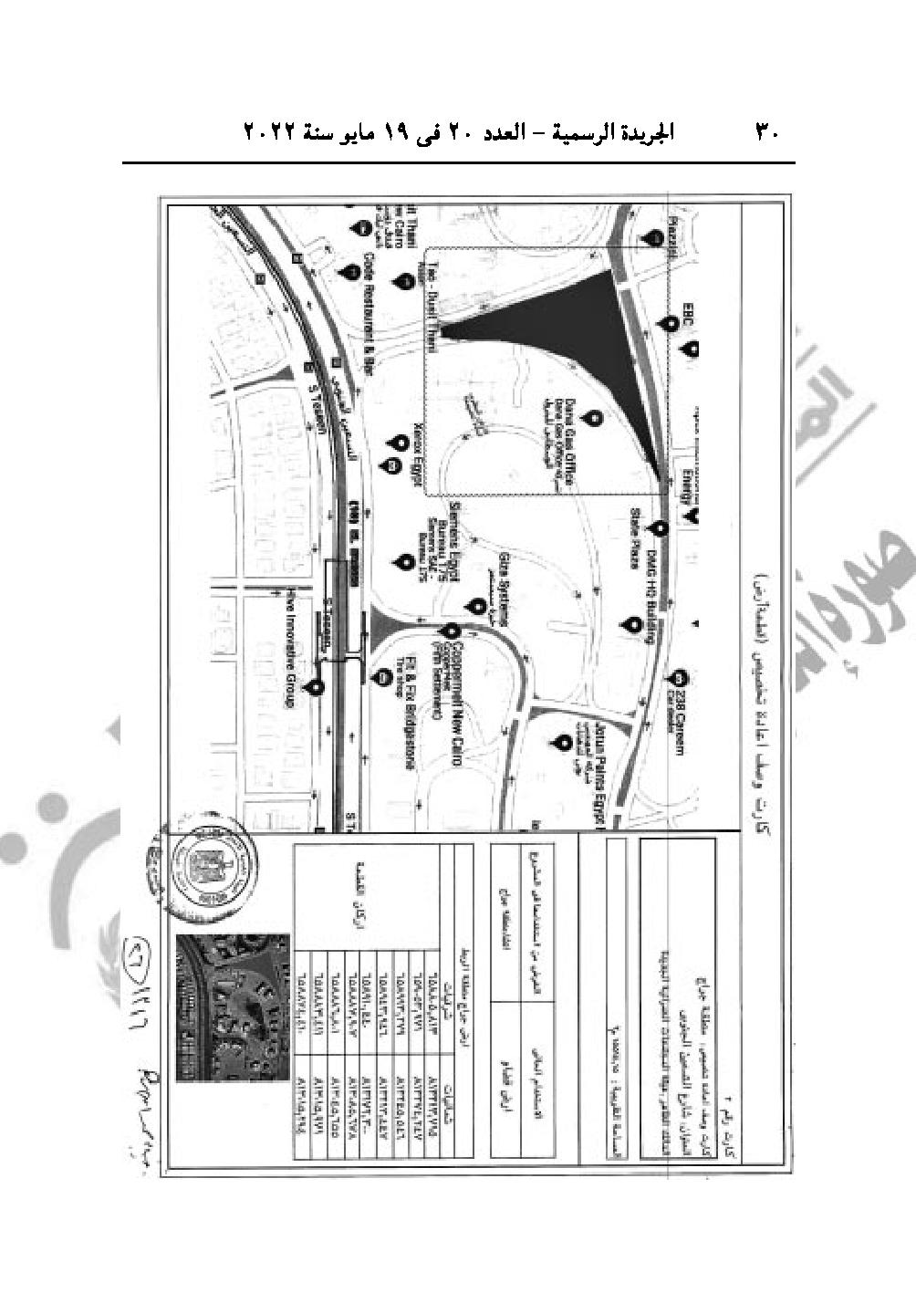
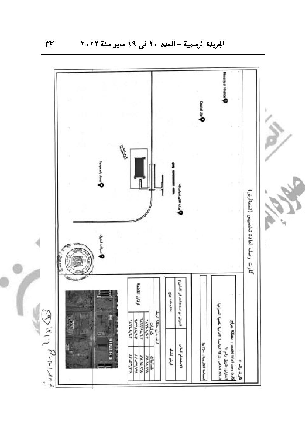
والقرار رقم 1316 لسنة 2022، بإضافة بعض مسطحات الأراضي والعقارات في نطاق محافظتى القاهرة والجيزة، واللازمة لتنفيذ مشروع خطي مونوريل العاصمة الإدارية الجديدة، ومونوريل السادس من أكتوبر، الصادر بشأنها قرارا رئيس مجلس الوزراء رقما 2678 لسنة 2020، و2180 لسنة 2021.







































































والقرار رقم 1408 لسنة 2022، باعتبار مشروع ازدواج طريق الأقصر/ قنا الصحراوي الشرقي في نطاق محافظة الأقصر من أعمال المنفعة العامة.
والقرار رقم 1427 لسنة 2022، بالترخيص للهيئة القومية للاستشعار من البعد وعلوم الفضاء بإنشاء شركة مساهمة باسم "الشركة المصرية لخدمات تقنيات الاستشعار من البعد وعلوم الفضاء".
